Dom w centrum Jaktorowa
660 000 zł 9 428.57 zł/m2Dom jednokondygnacyjny dwupokojowy o powierzchni zabudowy 70 m2 w centrum gminy Jaktorów, w miejscowości Chylice-Kolonia. W bliskiej okolicy stacja PKP, przystanek autobusowy, Urząd Gminy, posterunek policji, apteka, przychodnia POZ, szkoła, sklepy i supermarket.
Oferta dotyczy sprzedaży działki wraz z wybudowaniem na nim domu w stanie deweloperskim. Działka położona w spokojnej okolicy mimo bliskości usług. Lokalizacja w bocznej uliczce (Wojska Polskiego) prowadzącej do drogi głównej.
Wszystkie pozwolenia zostały wydane. Roboty budowlane zostały rozpoczęte. Budowa samego domu planowana jest na przełom 1 i 2 kwartału, a czas realizacji to 3-5 miesięcy.
Dom
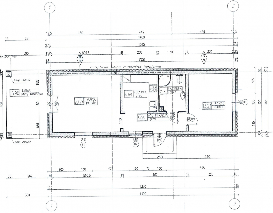
Powierzchnia zabudowy bez tarasu: 5 x 14 m
Powierzchnia tarasu: 5 x 3 m
Wykonany z termotonu 25 cm
Docieplony wełną mineralną kamienną i styropianem 15 cm
Dach kryty blachodachówką
Ogrzewanie za pomocą gazu lub pompy ciepła (wybiera klient).
Pomieszczenia:
Salon: 20,74 m2
Sypialnia: 13,21 m2
Kuchnia: 6,68 m2 (mozliwość połącznia kuchni z salonem)
Łazienka: 5,20 m2
Hall: 5,05 m2
Działka:
Powierzchnia: 664 m2
Wymiary: 11 x 60 m
Dojazd utwardzony
Media: szambo, prąd, gaz, wkrótce: woda miejska
Sąsiedztwo (pieszo):
PKP: 4 min.
Przystanek autobusowy GPA: 3 min.
Apteka: 3 min.
Urząd Gminy: 4 min.
Piekarnia: 3 min.
Szkoła Podstawowa: 5 min.
Kościół: 5 min.
Supermarket (Netto): 8 min.
Sklep (Żabka): 8 min.
Istnieje możliwość wykończenia domu za dopłatą.
Autor oferty
Zadzwoń
